Property Details - Reference 48811

Drummond Court
Twyford Road
Eastleigh
Hampshire
SO50 4HQ
Cost summary

Overview

Advert Type:
Affordable Rent.
Landlord:
VIVID.
Closing date:
02/11/2025.
Added:
29/10/2025.
Pets allowed
2 bedrooms
Off Street parking
Garden
Affordable Rent Property
No Lift
Energy Efficiency Rating C
Icon Descriptions
Pets allowed
2 bedrooms
Off Street parking
Garden
Affordable Rent Property
No Lift
Energy Efficiency Rating C
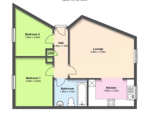
Floor Plan

Main details

Property Reference:
48811.
Area:
Eastleigh.
Bedrooms:
2 Bed.
Property type:
Flat.
Number of permitted occupants (recommended):
3.
Floor Level:
2nd floor.
Below is a map showing this property's location. Skip past the map

Cost

Rent:
£201.37.
Total cost:
£201.37.
Affordable Rent Description:
Rented housing let by registered providers of social housing to households who are eligible for social rented housing. Affordable rent is a rent of no more than 80 per cent of the local market rent, including service charges where applicable..
Payment Cycle:
Weekly.

Facilities

Energy Efficiency Rating:
C (69-80).
Pets Permitted:
Yes.
Bathroom facilities:
Bathroom with W/C.
Garden type:
Communal garden.
Heating type:
Electric radiator.
Parking facilities:
Off street parking..
Number of single bedrooms:
1.
Number of double bedrooms:
1.

Eligibility details

Allowed Band:
Band 1, Band 2, Band 3, Band 4.
Min Bed:
2.
Max Bed:
2.
Minimum number of permitted occupants:
2.
Maximum number of permitted occupants:
3.

Further information

2 bedroom (3 person) 2nd floor flat in Eastleigh being let on an affordable tenancy. All successful applicants are subject to pre-tenancy and affordability assessments. Minimum 4 weeks rent due at signup for all successful applicants. White goods and flooring not provided unless advised otherwise. ELECTRIC ONLY - NO GAS. Only applicants with a local connection to the Eastleigh borough will be considered. Only bid on this property if you are definitely interested. If you unreasonably refuse 2 properties in 6 months your application will be suspended for 6 months. You do not need to bid to remain on Hampshire Home Choice. .

Media

Map

Below is a map showing this property's location. You can find more information about this property in the 'Overview' tab. Skip past the map

Map references should be used as a guide only and do not indicate the precise location of the property
Contains Ordnance Survey data © Crown copyright and database right 2015.